El Dorado

El Dorado

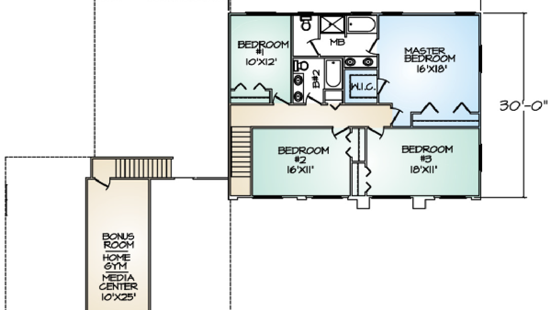
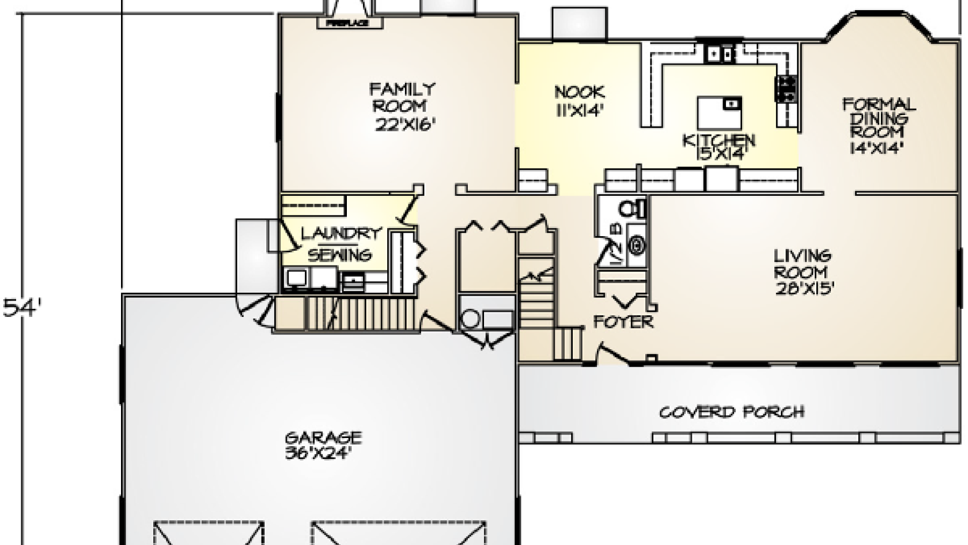
The El Dorado panelized kit home shows a Southwestern influence from its covered front porch and unique exterior to the three distinct living areas inside. The foyer opens into a huge living room with access to the formal dining room. Ample counter space and a central island are just two features of the El Dorado’s kitchen, also offering access to both the dining room and a breakfast room or nook. The expansive family room adjoining a storage room, half bath, and three-car garage comprises the second living area. A multi-purpose, oversized laundry and sewing room is accessible from both inside and outside the home. Just a few steps from the family room, stairs lead to the enormous bonus room above the garage, functional as a storage, game, hobby, or media room. The third living area is upstairs, featuring four bedrooms plus a large master bedroom with private bath. The three-car garage has enough room to include either storage or a work area.

FAQs:

About 7 to 10 days. Larger footprint and bonus-over-garage increase truss and sheathing time.

Panelized Kit Home Specs:

  • Total Living Space: 3,406 ft² (316 m²)
  • Bedrooms: 4+ Bonus
  • Bathrooms:
  • Garage: 3 Car
  • Ceiling Height: 8’
  • Covered Porch: 296 ft² (27 m²)
  • Home Plan Cost: Included (February 2026)
  • Building Kit Cost: $178,250 (February 2026)
  • Style: 2 Story
  • Minimum Payment: $8,300
Download Free Plan Review Set

Want More Information?

Invalid Input
Invalid Input
Invalid Input
Invalid Input
Invalid Input

Add to Cart

Contact Us

We will contact you and draw up requirements for the project and estimate.
Please enter your first name
Please enter your last name
Please enter a valid email address
Invalid Input
Invalid Input