Scottsdale

Scottsdale

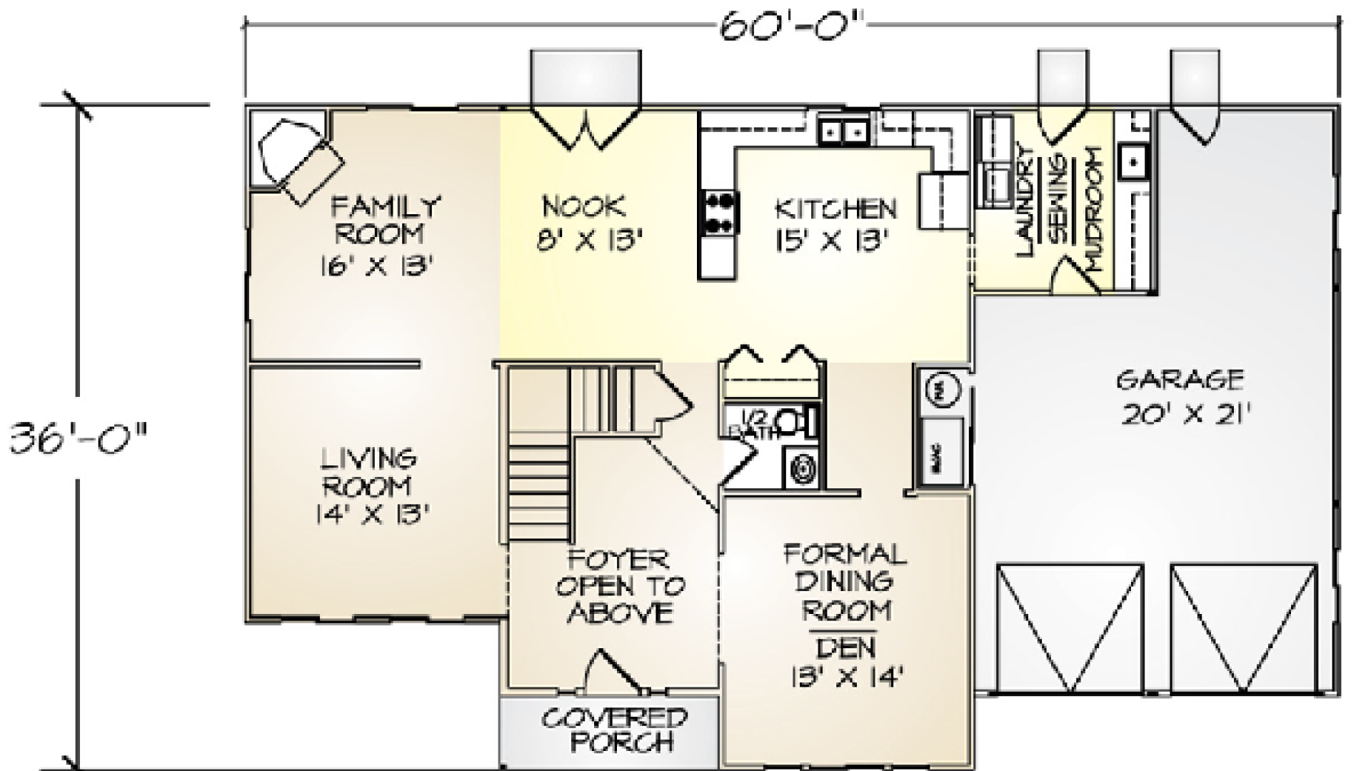
Certain homes have a unique signature all their own and are easily recognized by everyone. With a grand entrance offering immediate access to the formal dining and living rooms, the Scottsdale panelized kit home is one of those homes. The large family room with an informal eating area next to the kitchen is perfect for everyday family use. The master suite enjoys a large walk-in closet off of the compartmentalized master bath area. The oversized two-car garage even has an area for a golf cart, shop, home office, or more storage.

FAQs:

About 6 to 8 days. Porch plus mixed formal and informal walls require extra layout checks.

Panelized Kit Home Specs:

  • Total Living Space: 2,601 ft² (242 m²)
  • Bedrooms: 4
  • Bathrooms:
  • Garage: 2½ Car
  • Ceiling Height: 8’
  • Covered Porch: 48 ft² (4 m²)
  • Home Plan Cost: Included (February 2026)
  • Building Kit Cost: $139,160 (February 2026)
  • Style: 2 Story
  • Minimum Payment: $6,800
Download Free Plan Review Set

Want More Information?

Invalid Input
Invalid Input
Invalid Input
Invalid Input
Invalid Input

Add to Cart

Contact Us

We will contact you and draw up requirements for the project and estimate.
Please enter your first name
Please enter your last name
Please enter a valid email address
Invalid Input
Invalid Input