Meadow View

Meadow View

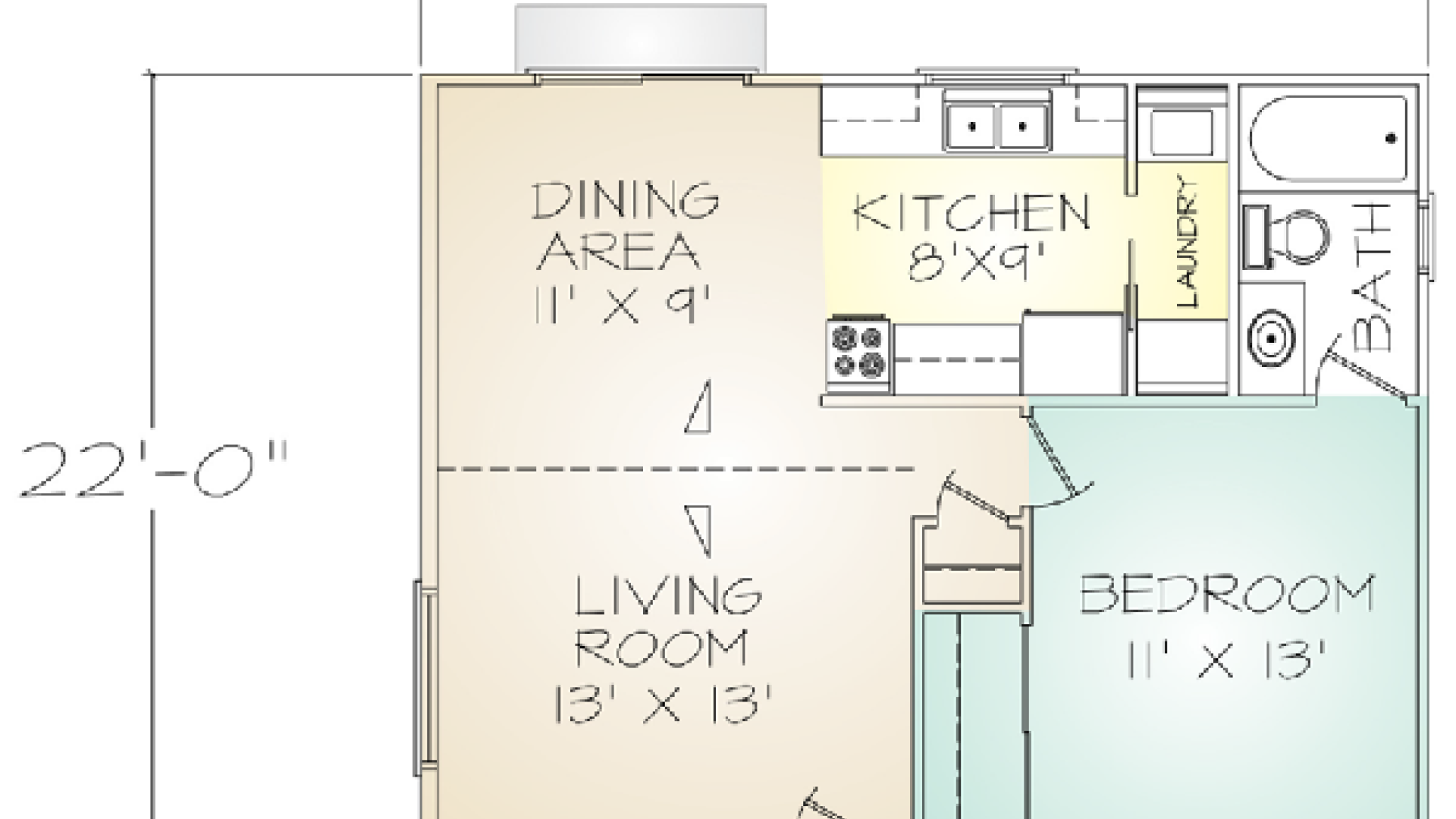
Meadow View makes small feel smart at 616 sq ft. Use it as a cozy cabin or an ADU granny flat or granny pod where allowed. You get vaulted living and dining, a true kitchen, and in-unit laundry. No porch by default, but many owners add a small covered entry or awning during plan review.

FAQs:

Often yes. The compact 1-bedroom footprint is suitable for many ADU programs; confirm local zoning, setbacks, parking, and utility rules for your lot.

Panelized Kit Home Specs:

  • Total Living Space: 616 ft² (57 m²)
  • Bedrooms: 1
  • Bathrooms: 1
  • Garage: N/A
  • Ceiling Height: 8'
  • Covered Porch: N/A
  • Home Plan Cost: Included (February 2026)
  • Building Kit Cost: $37,053 (February 2026)
  • Style: 1 Story
  • Minimum Payment: $3,700
Download Free Plan Review Set

Want More Information?

Invalid Input
Invalid Input
Invalid Input
Invalid Input
Invalid Input

Add to Cart

Contact Us

We will contact you and draw up requirements for the project and estimate.
Please enter your first name
Please enter your last name
Please enter a valid email address
Invalid Input
Invalid Input