Huntington

Huntington

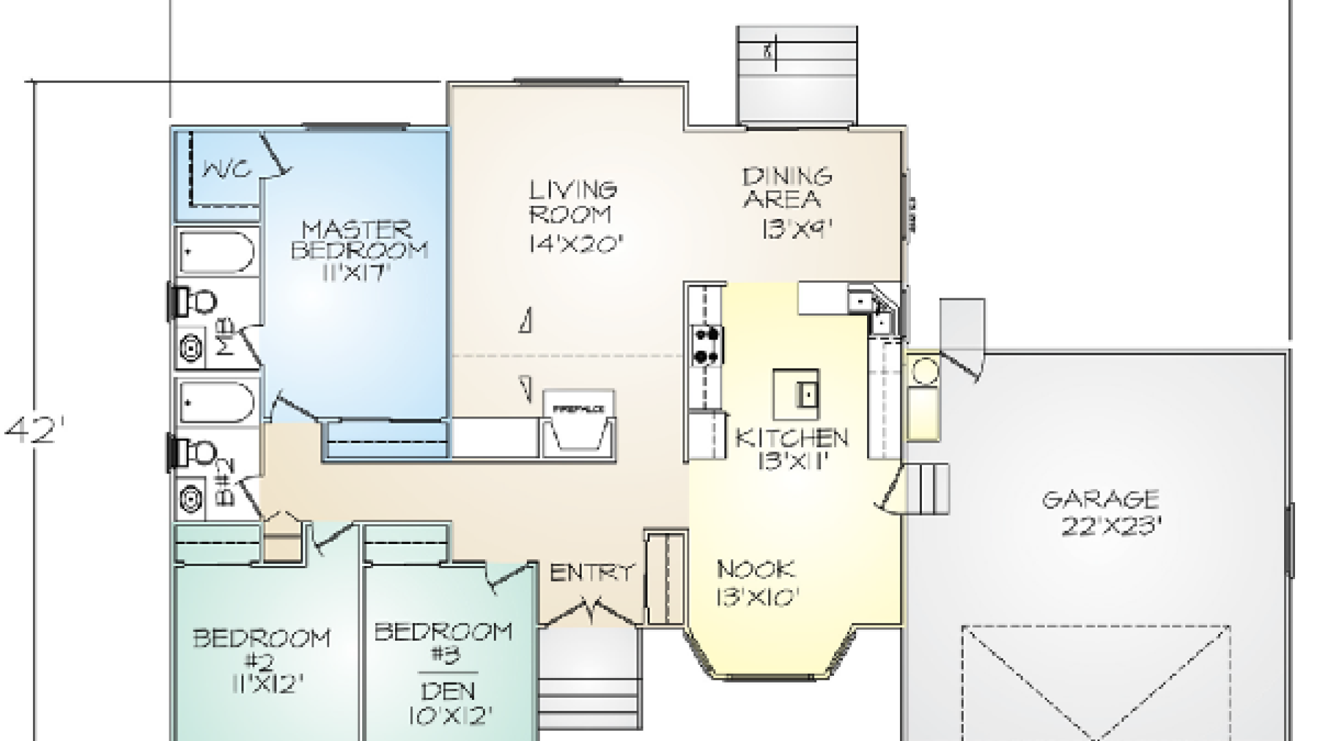
The Huntington panelized kit home offers a traditional ranch-style floor plan. This one-story home incorporates a formal entry with double doors and a formal dining room. The kitchen boasts convenient features such as an island with a second sink and easy access to both the formal dining room and breakfast nook. The master bedroom enjoys extra clothes storage areas such as a walk-in closet as well as a private bath.

FAQs:

Often yes. The plan includes a formal dining room; during plan review you can request converting it to a study or opening walls to the kitchen, subject to engineering and local code.

Panelized Kit Home Specs:

  • Total Living Space: 1,582 ft² (147 m²)
  • Bedrooms: 3
  • Bathrooms: 2
  • Garage: 2 Car
  • Ceiling Height: 8’
  • Covered Porch: 25 ft² (2 m²)
  • Home Plan Cost: Included (February 2026)
  • Building Kit Cost: $97,727 (February 2026)
  • Style: 1 Story
  • Minimum Payment: $5,100
Download Free Plan Review Set

Want More Information?

Invalid Input
Invalid Input
Invalid Input
Invalid Input
Invalid Input

Add to Cart

Contact Us

We will contact you and draw up requirements for the project and estimate.
Please enter your first name
Please enter your last name
Please enter a valid email address
Invalid Input
Invalid Input