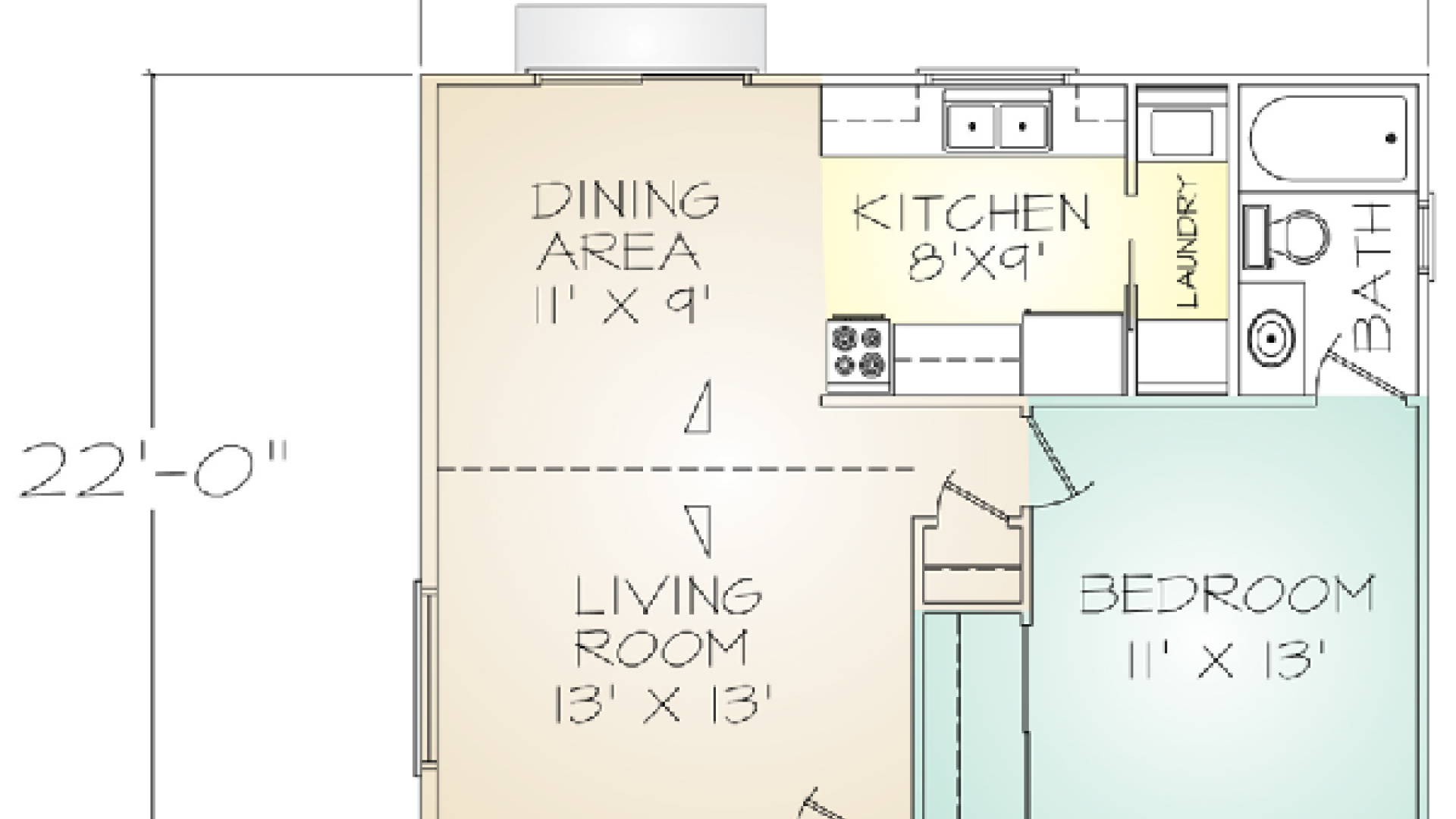
Meadow View makes small feel smart at 616 sq ft. Use it as a cozy cabin or an ADU granny flat or granny pod where allowed. You get vaulted living and dining, a true kitchen, and in-unit laundry. No porch by default, but many owners add a small covered entry or awning during plan review.
FAQs:
Often yes. The compact 1-bedroom footprint is suitable for many ADU programs; confirm local zoning, setbacks, parking, and utility rules for your lot.
Usually possible. The base plan lists no covered porch, but a modest porch or awning can be designed during plan review, subject to engineering and local code.
Yes. Siding choices (for example, lap, panel, or stucco where allowed) and roof/eave details can be set during plan review, with any structural changes engineered to meet code.
Projects are typically engineered for slab, crawl space, or basement depending on soils and local requirements. Your builder and engineer will confirm the best option for your site.